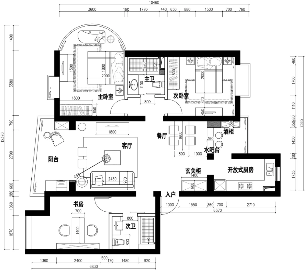
Rm 2302 No 1 Phoenix Garden
Line 7 Changping Road (1-min)
RMB 24,000/mo



Information
3
2
150㎡
One Storey Flat
Home Improvement Pro
Facilitys
Balcony
Floor Heating
Central air-conditioning
Open kitchen
Furnished
Pets' Friendly
Posted by
Freeman Cao
Approved by
Lintel Group




















