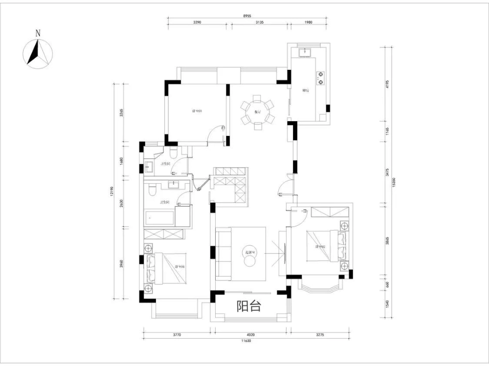
48天前 查看小区信息西郊紫薇花园19号702室2号线 威宁路 (6分钟)现代公寓 RMB 33,660/月基础信息32154㎡普通平层资产管理员配套设施地热中央空调配家具宠物友好发布Freeman Cao审核Lintel Group联系玄楣西郊紫薇花园19号702室的评价暂时还没有评价...我要评价您可能感兴趣的房源现代公寓天山虹桥古北西郊紫薇花园5号502室RMB 26,000/月5年前22115